EU
ESTUDI
CONTACTE
RESIDENCIAL
PUBLIC
REHABILITACIO
PRIVAT
E S P I N E T / U B A C H
EU
ESTUDI
CONTACTE
RESIDENCIAL
PUBLIC
REHABILITACIO
PRIVAT

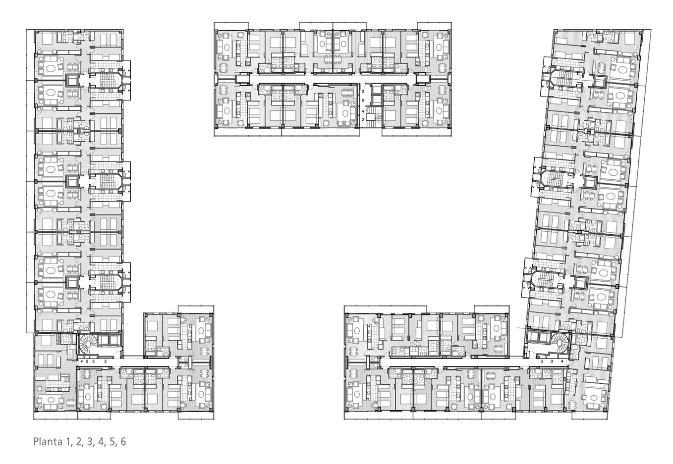
RESIDENCIAL NOVA PLANA

Barberà del Vallès, 2009 Conjunt residencial compost per 4 volums que tanquen l’illa. Durant el projecte es va estudiar a fons una modulació que facilités, sense canvis estructurals ni de façana, emprar un mòdul d’un dormitori, dos, tres o fins a quatre dormitoris amb unes superfícies molt ajustades. Les solucions arquitectòniques i els materials emprats en les façanes doten al conjunt de molta contundència formal i serena elegància constructiva. A l’espai central, a l’interior dels volums, és on es reuneix tota la vida comunitària, convivint els accessos a totes les escales d’accés als habitatges, espais de trànsit, zones de joc i àrees de descans arbrades.

↑